Описание

Modera Towers — это многофункциональный комплекс, сочетающий в себе жилую недвижимость, бизнес-центр, отель, коммерческие площади и всё, что нужно для комфортной жизни его резидентов. Комплекс расположен на одной из самых оживлённых улиц столицы, недалеко от парка «Дружбы» и множества других знаковых локаций.

 

Парадный вход у пересечения улиц Ивлиева и Шота Руставели ведёт в просторное лобби, где предусмотрено место для консьержа и встречи гостей. Отсюда же можно попасть в холл, ведущий к лифту и общественным пространствам на пятом этаже резиденции. Просторные пассажирские и грузовые лифты финской компании KONE поднимут на нужный этаж быстро и бесшумно.

 

Для комфорта арендаторов офисных пространств и резидентов комплекса на территории Modera Towers будет представлен подземный паркинг на 242 места с круглосуточной охраной и видеонаблюдением, контролем въезда и выезда, с прямым доступом к квартирам и бизнес-центру.

Читать больше
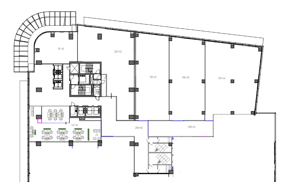
Характеристики
Площадь

16 000 кв.м.

Год постройки

2024

Этажность

24

Кол - во лифтов

5

Высота потолков

3

Состояние помещений

С отделкой

Класс здания

А

Метро поблизости

Айбек

Время пешком от метро

15

Время на машине от метро

6

Инфраструктура

Grand Mir Hotel

Система охлаждения/отопления

VRF

Business district

SCBD

Возможность изменения планировки

Да

Локация
Брокеры
img
Насима Ахматова
Консультант, аренда и приобретение
Nasima.Akhmatova@cmwp.uz +998 94 777 06 52

Информация о рынке

Будьте в курсе последних событий IQ KB